Sørenga sjøbad

Funksjon
Sjøbad, park og rekreasjon

Oppdragsgiver
Bjørvika Infrastruktur AS

Kontakt
Randi Wøien

Sted
Oslo

År
2015

Prosjekter / Ferdigstilt

Sørenga sjøbad

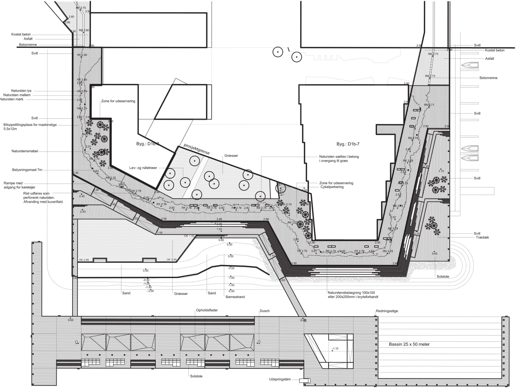
I 2009 fikk LPO og Kristine Jensens tegnestue sammen med Dr. Ing. A. Aas Jacobsen AS oppdraget med å prosjektere de offentlige arealene med sammenhengende park og promenade på Sørenga. I tillegg til Sjøbadet består prosjektet av den brede promenaden langs Sørengas vestside og en promenade på østsiden av utstikkeren. Sjøbadet ble åpnet 25. juni 2015 og er blitt en viktig ny destinasjon i Oslo.

+ Les mer

Les mindre

Funksjon
Sjøbad, park og rekreasjon

Oppdragsgiver
Bjørvika Infrastruktur AS

Kontakt
Randi Wøien

Sted
Oslo

År
2015

Sjøbadet har blitt et viktig bidrag de nye offentlige rekreasjonsarealene i Oslo og ligger sentralt til i Bjørvika med utsikt utover Hovedøya og innseilingen mot Operaen, Barcode og byen.

På land omfatter parken stranden, den grønne sletten, rampeanlegget i tre, bastionen i syd og terrassene mot øst. I vann omfatter parken den store flyteren og tilliggende bassenger. Det er etablert et konkurransebasseng, barne- og handicapbasseng i tillegg til vannbassenget mellom strand og flyter. Overflaten på flyteren er dekket i tre (kebony) og det er store åpne arealer som innbyr til ulik type opphold og bruk. Parkens møblement er i størst mulig grad en integrert del av konstruksjonen.

Parkarealet i syd på utstikkeren omfatter 8.7 dekar fordelt på parkareal på land, vannbassenger og flytekonstruksjonen. Flyteren er konstruert i betong, 190 meter lang og rundt 28 meter bred. Totalt veier betongkonstruksjonen 4650 tonn og er ca. 3700 kvadratmeter stor.