Hilde Lillejord

Ny framtid for Nationaltheatret - bearbeidet forslag

Gruppen Ny framtid for Nationaltheatret la i dag frem bearbeidet forslag i tillegg til konkrete skritt videre for forslaget om tilbygg til teatret.

Fire scener under samme tak - Vi gjør Liv Ullmanns utbrudd på vårt offentlige møte tidligere i dag til vårt: «Det som du er, gjør fullt og helt, ikke stykkevis og delt». Med disse ord fra Ullmann og Ibsen erklærer prosjektgruppen «Ny fremtid for Nationaltheatret» at arbeidet fortsetter med uforminsket styrke. Vi tror ikke på å spre teatret på bi-scener omkring i byen. Vi vil videre studere kvalitetssikringsrapporten og kommentere den. De stadige tilbakemeldingene, og ikke minst spørsmål og kommentarer i Kulturkomiteen på Stortinget i går, gir oss motivasjon til å holde trøkket oppe. Vårt mål er å igangsette et privat planinitiativ før sommeren.

Det bearbeidede løsningsforslaget opprettholder Nationaltheatret som landets hovedscene med god scenekapasitet og som dessuten gir teaterkunsten gode arbeidsvilkår ved å utnytte tomtens fulle potensial gjennom et stedstilpasset tilbygg. Forslaget muliggjør bevaring av amfiscenen og malersalen samtidig som det tilføres en ny prøvesal. Forslaget innebærer også vesentlig bedre intern logistikk, fullverdig ventilasjonsanlegg samt bedre skuespillergarderober, kontorlokaler og kantine.

Gruppens ønsker med forslaget å styrke og samle Nationaltheatret i eksisterende bygning ved å legge til rette for bedre vilkår for eksisterende scener. I tillegg gir forslaget plass til et helt nytt scenerom med omtrent samme gulvareal som Hovedscenen. Disse fire scenene vil gjøre Nationaltheatret til et sterkt og fremtidsrettet teater, midt i hovedstadens hjerte.

Henrik Bull sin tegning av en forlengelse av Nationaltheatret fra 1935 som viser en tilsvarende utbygging mot vest som den gruppen nå presenterer. Kilde: Nasjonalmuseet.
LPO sin bearbeidede skisse av en forlengelse av Nationaltheatret 2025.
LPO sin bearbeidede skisse av en forlengelse av Nationaltheatret 2025 sett ovenfra.
Planløsning etasje 0.
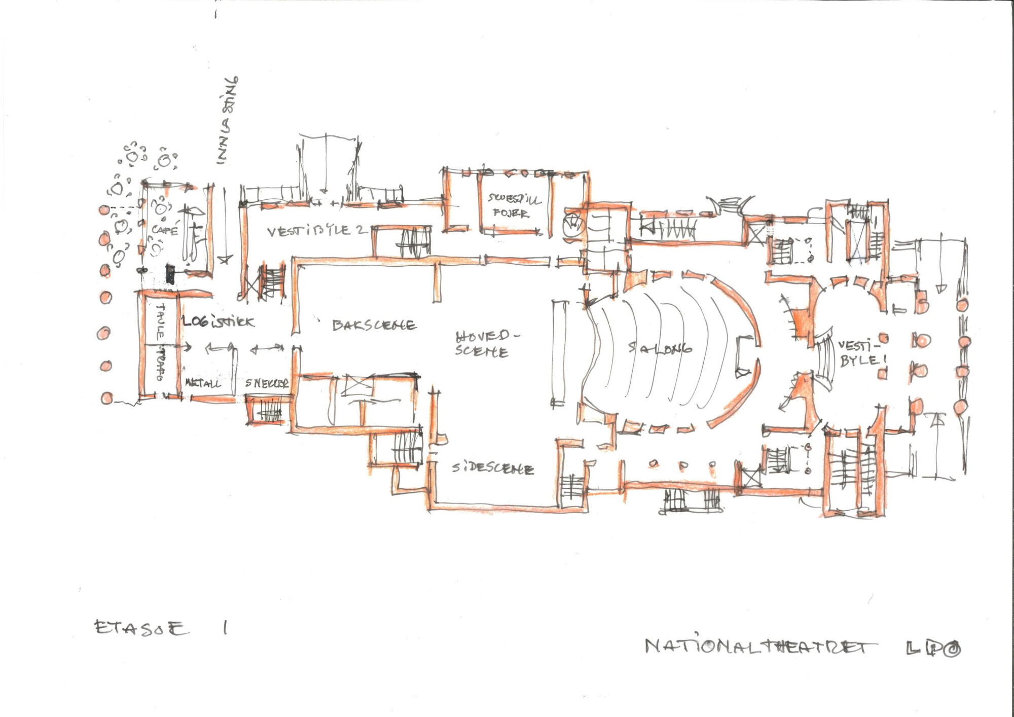
Planløsning etasje 1.
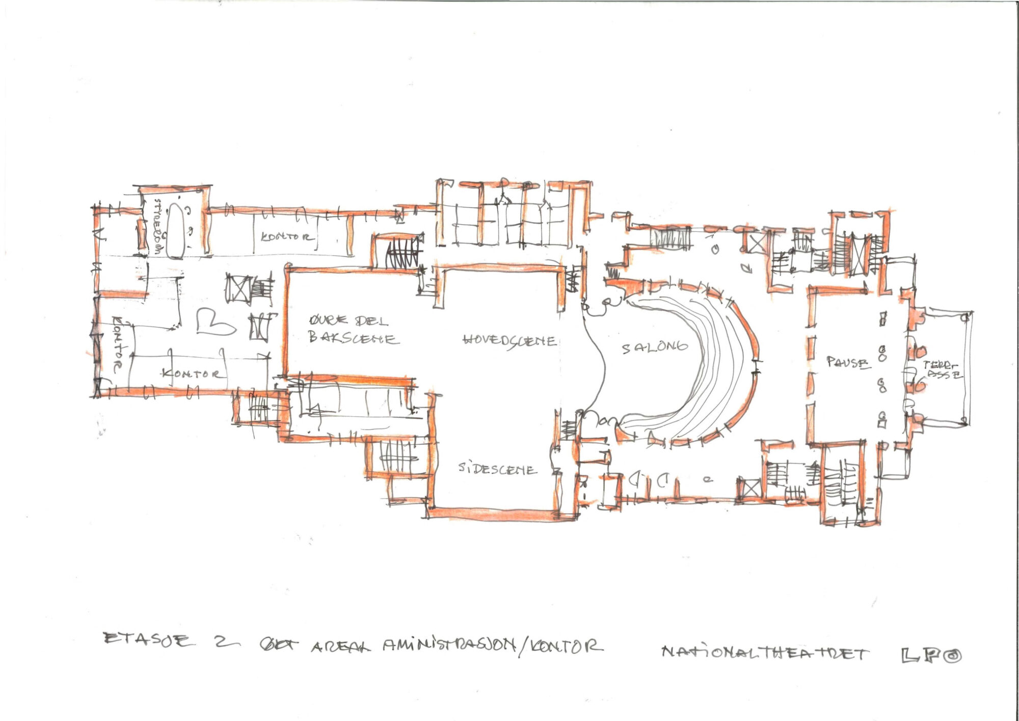
Planløsning etasje 2.
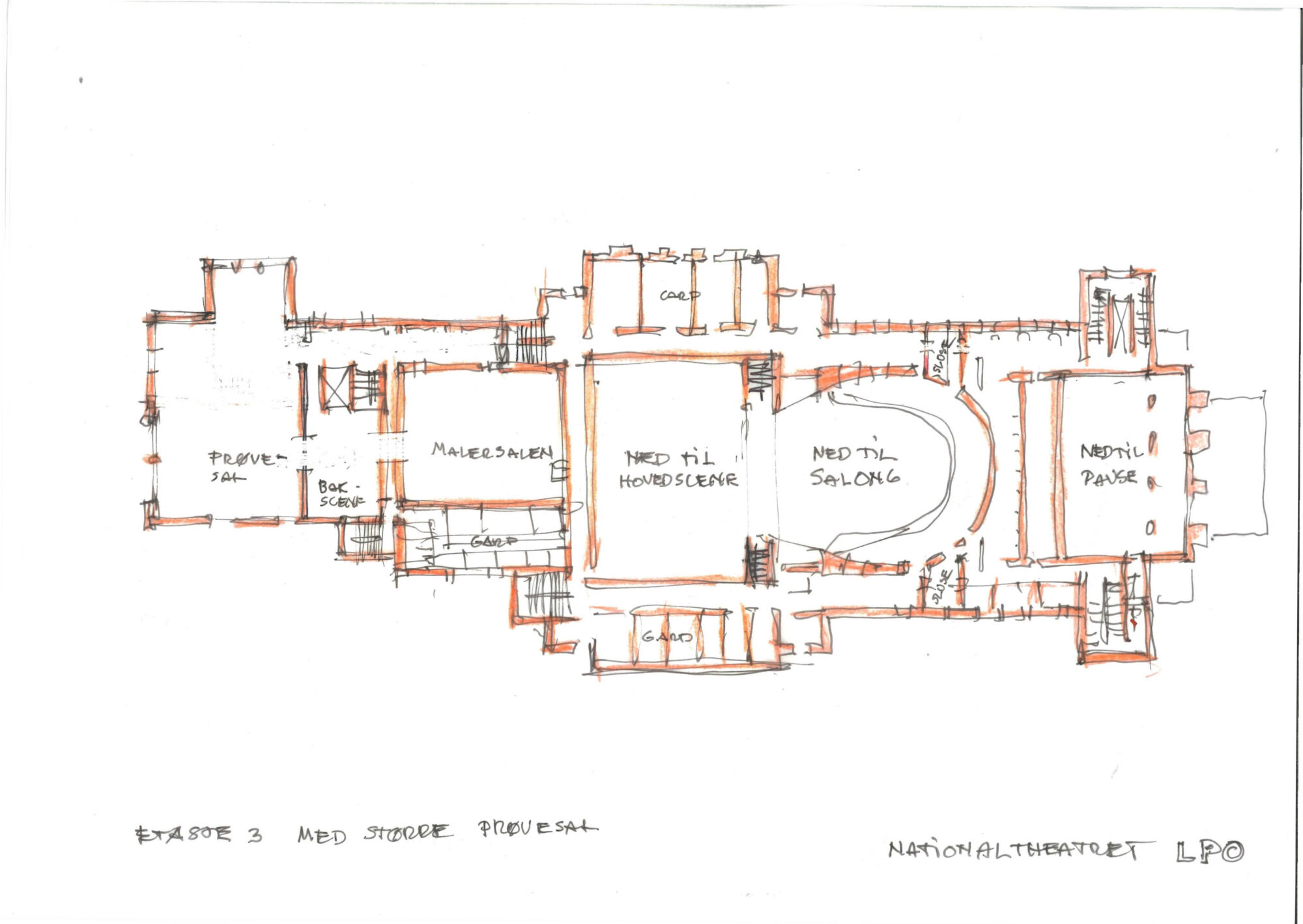
Planløsning etasje 3.
Planløsning etasje 4.
Bearbeidet forslag av forlengelse av Nationaltheatret. Illustrasjon: LPO arkitekter
Bearbeidet forslag av forlengelse av Nationaltheatret. Denne illustrasjonen viser at forslaget ikke kommer i konflikt med eksisterende trafikksituasjon/kollektivterminal. Illustrasjon: LPO arkitekter